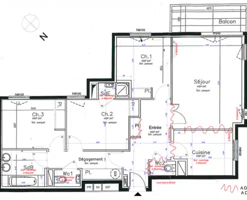
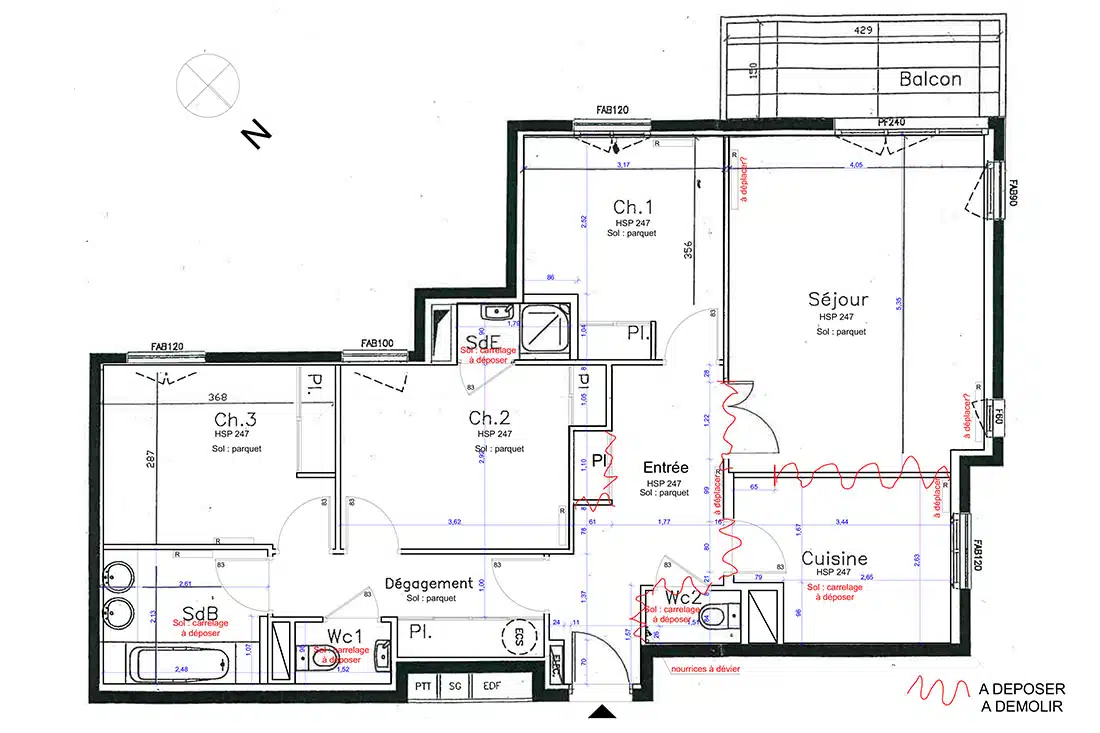
Projet Saint Antoine
C’est l’histoire d’une famille qui adore son quartier, et qui veut y rester !
Problème : les 3 enfants grandissent et il faut plus d’espace. Jusqu’au jour où Monsieur et Madame tombent sur la perle rare : plus de chambres, des pièces de vie plus grandes, une terrasse et vue sur jardin.
MAIS pour que l’endroit se transforme en appartement idéal : il a fallu faire quelques transformations :
- placards sur mesure dans les chambres et dans le couloir
- une salle de bains avec un espace buanderie
- l’ouverture des pièces de vie
- l’utilisation de l’entrée en coin bureau pour utiliser chaque mètre carré
Malgré un lancement prévu en mars 2020… Ah, le fameux COVID ! Des voisins pas très fans de notre « rythme de travaux » et des matériaux en rupture de stock…
Nous avons cassé des murs, créé un coin bureau pour le télétravail (confinement oblige ! ), ajusté l’électricité, rénové la salle de bains et la salle d’eau, rajeuni le parquet et pimpé les murs !
Pour mieux se rendre compte du Avant/Après n’hésitez pas à regarder cette publication Instagram ici
🕊 Résultat ? 4 mois plus tard, après des péripéties dignes d’une série, nos héros emménagent, soulagés d’avoir pu faire rénover leur appartement pendant la pause confinement.
La leçon de ce chantier ? Même en plein chaos, bien entouré, les rêves peuvent se réaliser !















































RN Architecture
RN Architecture