Restructuration et rénovation appartement 60m2
Madame R. a hérité d’un appartement qu’elle ne se voit pas habiter… et encore moins vendre.
En effet, recevoir un bien immobilier en héritage fait naître des sentiments mélangés : on n’a pas envie de vendre un bien auquel on est attaché pour y avoir vécu avec nos parents. En même temps, ce bien hérité répond rarement aux critères que l’on s’est fixés pour un investissement immobilier, surtout pour une résidence principale !
Si depuis le confinement, beaucoup de familles ont quitté Paris, ici c’est l’inverse : la famille R. a quitté son pavillon de banlieue pour s’installer dans le même appartement où la mère avait fait ses études à Paris il y a 40 ans…
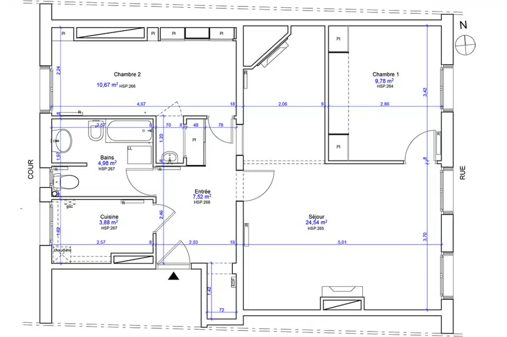
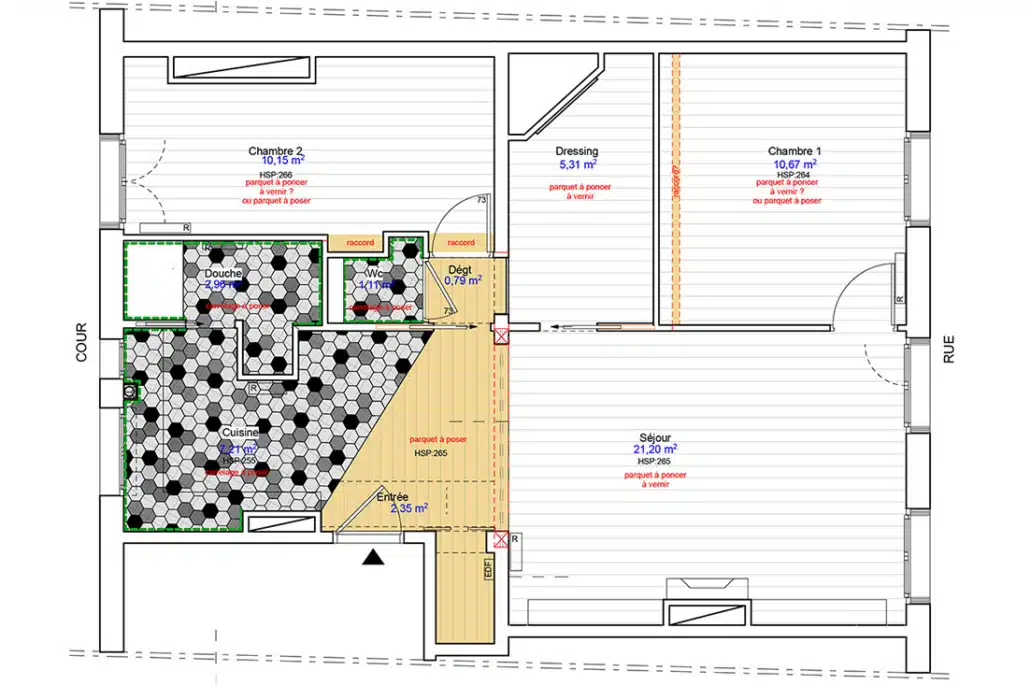
👉 Entre les deux, une profonde transformation, notamment :
- suppression de l’entrée inutile, avec consolidation de ses murs porteurs
- création d’une vraie pièce à vivre lumineuse, traversante d’est en ouest
- ouverture de la cuisine sur la salle à manger
- intégration d’une bibliothèque sur mesure au salon
- création d’un dressing sur mesure à la place d’un “coin cheminée” aveugle
- installation de miroirs pour agrandir l’espace perçu
- optimisation et dissimulation de la plomberie
- mise de l’électricité aux normes
Pour plus de détail rendez vous sur l’article ici











































RN Architecture
RN Architecture