Quitter la banlieue pour faciliter les études de ses enfants
Dans les années 80, Jacqueline R. jeune étudiante, vivait en pavillon avec ses parents en banlieue Sud. Après 3 ans d’allers retours quotidiens à son université à Paris, Jacqueline R. désireuse de se rapprocher de la capitale, trouve un 3 pièces bien situé et convainc ses parents de s’y installer, pour faciliter ses études.
Un appartement en héritage
Au décès de ses parents, Jacqueline R. hérite de cet appartement, qu’elle ne se voit pas habiter… et encore moins vendre !
En effet, recevoir un bien immobilier en héritage fait naître des sentiments mélangés : on n’a pas envie de vendre un bien auquel on est attaché pour y avoir vécu avec nos parents.
En même temps, ce bien hérité répond rarement aux critères que l’on s’est fixés pour un investissement immobilier, surtout pour une résidence principale.
Avec sa famille, elle est bien installée dans une belle maison de 150m2 dans les Yvelines et n’envisage pas de la quitter.
Quand une amie a besoin d’un logement temporaire pendant la rénovation de son studio, elle n’hésite pas à lui proposer de s’y installer durant les quelques mois des ses travaux. Le logement est certes vétuste, « dans son jus » comme on dit, mais pour quelques semaines en dépannage, il tombe à pic !
Jacqueline R. après avoir suivi les travaux menés efficacement par Noëlle Roques pour son amie, et séduite par les réalisations publiées sur le site de RN Architecture, l’idée a germé de lui demander d’aller voir l’appartement du 12e pour un nouveau projet de transformation.
En effet, entretemps, la donne a changé pour la famille R. : le projet de leur fille d’accéder à un lycée parisien nécessite leur déménagement à Paris. Revenir dans cet appartement la placerait idéalement à quelques stations de métro des meilleurs lycées !
Pour l’avoir vécue elle-même, Jacqueline R. sait à quel point cela faciliterait la vie de sa fille de se rapprocher ainsi du lieu de ses études.
Pour voir si ce projet est viable, rendez-vous est donc pris à l’appartement avec Noëlle Roques pour l’étude de faisabilité, lors d’une visite conseil suivie d’un état des lieux.
L’appartement de Paris 12e avant les travaux
A part la réfection des peintures et le changement de la chaudière au gaz, aucune modernisation n’avait été effectuée dans cet appartement depuis plus de 60 ans.
Le chantier s’annonce donc immense car tout est à réhabiliter et il y a beaucoup de travail pour en faire un lieu où la famille puisse rêver de s’installer !
Le projet de Noëlle Roques pour transformer ce 3 pièces parisien
La visite permet de comprendre les attentes de la famille R. :
- moderniser le lieu et le mettre au goût du jour
- décloisonner les espaces
- favoriser l’espace à vivre en commun
- mettre en valeur les nombreux livres de la famille
- rendre les chambres plus spacieuses et aérées
- réduire l’espace bains au strict minimum
- création d’un WC séparé
- conserver des rangements pour 3 personnes
Pour cela, Noëlle Roques va notamment :
- supprimer l’entrée inutile (et consolider ses murs porteurs)
- créer une vraie pièce à vivre lumineuse et traversante d’est en ouest
- ouvrir la cuisine sur la salle à manger
- intégrer une bibliothèque sur mesure au salon
- créer un dressing dans le “coin cheminée”
- intégrer des miroirs pour agrandir l’espace perçu
- mettre l’électricité aux normes
- optimiser et dissimuler la plomberie
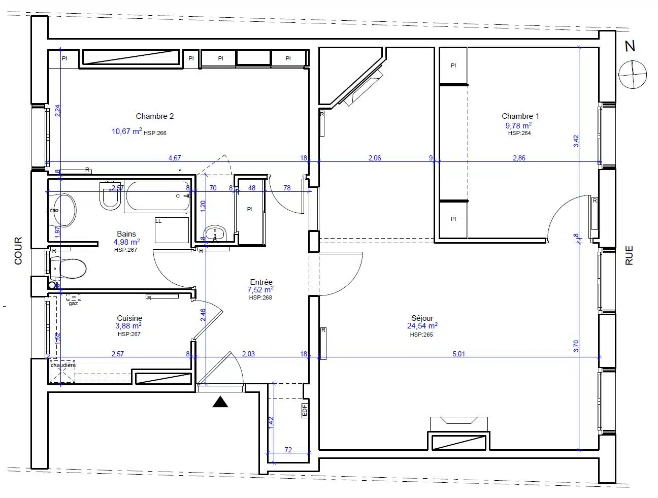
LES PLANS DE L’APPARTEMENT AVANT / APRÈS LA RÉNOVATION
Le plan général de l’appartement permet de voir les transformations apportées à la disposition des espaces :
Plan de l’appartement avant travaux

plan appartement paris 12 avant travaux
Avant Projet : Plan de l’Appartement après travaux

Avant projet Rénovation Appart Paris 2 par Noelle Roques
AVANT PROJET : QUELQUES ESQUISSES DE NOËLLE ROQUES
Les esquisses et vues en 3D permettent à Jacqueline et sa famille de se projeter et de valider les grandes orientations de leur projet.
La cuisine ouverte sur la salle à manger

La cuisine ouverte sur la salle à manger
La 2e chambre avec son coin bureau

La 2e chambre avec son coin bureau
La salle à manger et les éléments de cuisine intégrés

La salle à manger et les éléments de cuisine intégrés
La bibliothèque sur mesure dans le salon

La bibliothèque sur mesure dans le salon
Avant projet : vues en 3D, par Noëlle Roques

Avant projet : une vue 3d pour mieux se projeter, par Noëlle Roques
QUELQUES IMAGES DES (LOURDS) TRAVAUX ENTREPRIS
Les plafonds après démolition : un sacré patchwork !

Plafonds après démolition
Sur cette photo prise depuis la cuisine, on voit presque tout l’appartement avec l’entrée ouverte et le mur porteur vers le salon encore en place :
Et sur celle-ci, il faut un peu d’imagination pour visualiser les futurs aménagements du salon, du dressing et de la chambre parentale :

Chantier après abattement des cloisons entre la chambre parentale et le coin cheminée.

Le salon avant l’abattement du mur porteur le séparant de l’entrée.
Ouverture des murs porteurs
Un gros morceau : l’ouverture de la cuisine et de l’entrée, avec des murs porteurs au milieu

Ouverture de la cuisine
Après la démolition des cloisons et murs porteurs, installation d’étais en attendant la pose de la poutre métallique.

Installation d’étais

Poutres et poteaux métalliques
L’appartement a été désossé de fond en comble.
Les planchers ont été enlevés pour cacher les écoulements.
Sans les cloisons, l’espace de vie prend forme.
Quand le chantier commence à faire envie… et que l’emménagement est proche !
Quelques photos prises dans la dernière semaine.

Le chantier avance

La pièce à vivre juste avant l’arrivée des meubles

Dernières finitions dans le dressing

Deuxième chambre avant l’emménagement
La rénovation de ce 3 pièces de 61 m2 a duré 5 mois, et a été retardée de quelques semaines par la pandémie, du fait des confinements et respects des voisins. Mais la livraison de l’appartement est intervenue juste à temps : la veille de la rentrée scolaire !
Le nouvel appartement rénové
La pièce à vivre : salon – bibliothèque – salle à manger
Une bibliothèque sur mesure sur toute la longueur de la pièce vient encadrer la cheminée préservée.
Un miroir placé au dessus de la cheminée agrandit la pièce et réfléchit la lumière en provenance de la fenêtre.
Les livres réchauffent la pièce et lui donne du caractère.

Salon rénové (vue d’ensemble)

Salon ouvert sur la Salle à manger

Vue traversante depuis la fenêtre côté rue
Cuisine-salle à manger
La cuisine ouverte permet à l’appartement d’être traversant et de faire entrer la lumière des 2 côtés de l’espace à vivre.
Des miroirs placés de part et d’autre de la jonction entre la cuisine et la salle à manger masquent des rangements, agrandissent les espaces et diffusent la lumière.
La table généreuse (6 places) permet d’accueillir des invités à manger et sert en même temps d’endroit idéal pour prendre un café, lire un dossier, travailler sur un ordinateur portable…

La Salle à manger vue du salon

La Salle à manger vue de la cuisine

Rangement dans l’entrée.
Le placard de l’entrée est dissimulé par une cloison miroir coulissante : ouvert, il offre un bon espace de rangement. Fermé, il disparait visuellement, tout en réfléchissant la lumière des 2 côtés.

La cuisine rénovée

Une cuisine fonctionnelle, tout équipée et une fenêtre bien mise en valeur
La cuisine est fonctionnelle, tout équipée : grand plan de travail en bois, plaques à induction, placards, évier en faïence blanche. Et cuisiner avec une vue dégagée est toujours agréable !
Les matériaux et coloris élégants (blanc, noir, gis) des revêtements de sols et de murs ont été choisis par la Famille R. sur proposition de Noëlle Roques.

Electroménager : four et frigo encastrés.
Au fond de la cuisine à droite, l’accès vers la salle de douche.

Porte coulissante vers la salle de douche
A droite du frigo, un autre rangement est dissimulé derrière le miroir.

Entrée et Cuisine
Les chambres après rénovation
Pour la chambre parentale, le parti pris des époux R. était une chambre bien dégagée.

La chambre parentale après rénovation
Pour la chambre de leur fille, affaires de bureau et loisirs ont trouvé place dans les rangements astucieusement répartis, sans surcharger la pièce baignée de lumière.

2e chambre après rénovation
La salle de douche rénovée
La salle de bains a été transformée en salle de douche moderne et lumineuse.
L’espace est tellement optimisé qu’il a été possible d’y placer la machine à laver.
Le chauffe serviette est bien pratique.

Salle de douche rénovée
Optimisation de la plomberie
Le chantier a permis de dévier les canalisations mal placées, de les coffrer pour gagner de la place et leur rénovation permettra d’éviter les fuites, courantes sur une plomberie vétuste.

Création d’un cabinet de toilettes (WC) séparé avec un lave mains

plomberie rénovée salle de bains
Un vrai dressing
L’ancien coin cheminée a été transformé en dressing du sol au plafond, afin d’accueillir les affaires des 3 occupants de la maison : ce parti pris leur permet de disposer de chambres bien dégagées, sans les habituels placards, commodes, étagères ou autres rangements.
Et la cheminée au fond a même pu été conservée : souvenir familial !

Dressing : des rangements du sol au plafond !
Rénovation des parquets
En dehors des pièces d’eau carrelées, tout l’appartement arbore de beaux parquets rénovés, visible dans toutes les pièces : entrée, salle à manger, dressing, salon, chambre parentale et deuxième chambre.
Bilan de l’opération
En conclusion, la parole est aux clients pour le bilan de cette rénovation :
“Nous sommes tellement heureux d’avoir sauvé ce souvenir de famille, cet appartement de mes années étudiantes…c’est une façon de faire revivre mes parents qui seraient contents de savoir que leur petite fille y habite aujourd’hui, comme moi autrefois !
Cet appartement encombré, cloisonné, sombre et vétuste, on n’arrivait vraiment pas à se projeter dedans… Noëlle Roques écoute vraiment les besoins du client, elle présente les options possibles, sans chercher à nous imposer sa vision.Son projet a répondu à toutes nos attentes : un espace à vivre traversant et lumineux, des chambres dégagées, un dressing pratique, des miroirs qui agrandissent l’espace, des rangements astucieusement placés, une belle bibliothèque…
D’ailleurs, l’appartement de 61 m2 est tellement bien agencé et optimisé que l’on ne regrette pas d’avoir déménagé de notre maison de 120 m2 en banlieue. Réduire sa surface, c’est moins d’entretien, moins de contraintes et c’est plus facile à gérer.
Et revenir vivre à Paris nous permet d’avoir tout à proximité, sans jamais avoir besoin de prendre la voiture : commerçants, librairies, restaurants et sorties culturelles. On sort beaucoup plus qu’avant,… on revit !”
Propos recueillis par Laura Ciriani www.ciriani.com
Photos de Noëlle Roques.
Plans et Dessins de Noëlle Roques pour RN Architecture.
Vous souhaitez vous aussi faire appel à Noëlle Roques pour votre rénovation / transformation d’appartement ?
Voici comment se déroule une mission au service de votre projet :
Les 5 étapes de la rénovation avec une architecte d’intérieur
Pour tout projet d’architecture d’intérieur, Noëlle Roques vous établit une proposition/devis en 5 étapes détaillant ses prestations pour la réalisation du projet :
1. l’État des lieux, un dossier complet avec les relevés et le plan initial
2. l’Esquisse, avec des croquis pour visualiser les différentes configurations et pouvoir arrêter vos choix, en mariant vos souhaits avec les contraintes du lieu et du budget.
3. l’Avant-Projet Sommaire (APS), puis Définitif (APD) transforme l’esquisse en plans informatiques cotés en 2D et 3D.
A ce stade, Noëlle vous communique l’estimation prévisionnelle du coût des travaux (habituellement entre 1000 et 2000€ / m2 suivant le projet) et du calendrier (de quelques semaines à quelques mois suivant l’ampleur des travaux).
4. Le Dossier de Consultation des Entreprises (ou DCE) : Noëlle prépare les plans à une échelle encore plus détaillée, lot par lot, pour que chaque corps de métier (entreprise générale, peintre, plombier, électricien…) puisse chiffrer un devis précis et étayé de sa prestation. Vous pouvez alors arbitrer entre les différents devis et choisir les entreprises retenues pour réaliser le chantier.
5. Dernière étape, et pas des moindres, le Suivi de Chantier jusqu’à la Réception des Travaux. Noëlle anime toutes vos réunions de chantier et en diffuse les comptes rendus. Elle s’engage, avec sa garantie professionnelle décennale, sur la bonne fin des travaux.




